Резервуарное и насосное оборудование
ОКП 36 8911
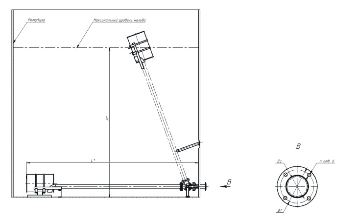
Труба подъемная с понтоном предназначена для забора топлива и других нефтепродуктов из верхнего слоя продукта, хранящегося в резервуаре. Труба является комплектующим изделием вертикальных цилиндрических резервуаров для хранения нефти, высококачественного топлива и масел.
Труба подъемная выпускается в климатическом исполнении Т, У и УХЛ категории размещения 1 по ГОСТ 15150-69.
Пример условного обозначения трубы при заказе:
ТПП-100У ТУ 3689-019-00217633-98, где:
ТПП-труба подъемная с понтоном;
100- условный проход;
У- климатическое исполнение.
|
Наименование параметров |
Величина параметров |
|||||||||
|
Типоразмеры |
||||||||||
|
ТПП-100 |
ТПП5-100 |
ТПП.150 |
ТПП150-11 |
ТПП250/9 |
ТПП250/12 |
ТПП-350 |
ТПП350/300 |
ТПП500/400 |
||
|
Условный проход, Ду, мм |
100 |
150 |
250 |
350 |
500 |
|||||
|
Максимальный уровень налива, H |
8200 |
3800 |
5200 |
11000 |
8600 |
11700 |
12350 |
11330 |
10400 |
|
|
Присоединительные размеры, мм: |
|
|||||||||
| Межцентровое расстояние, Д1 |
170 |
225 |
335 |
445 |
525 |
|||||
| Диаметр отверстий,d |
18 |
22 |
30 |
|||||||
| Количество отверстий |
4 |
8 |
12 |
16 |
||||||
| Габаритные размеры, мм, не более: Длина, L Ширина Высота |
10000
1500
715
|
4262
1500
588
|
7084
2713
730
|
10257
1313
419
|
9140
2280
1100
|
13440
2280
1100
|
14465
2330
1133
|
14720
2923
1133
|
14890
2923
753
|
|
|
Масса, кг, не более* |
360 |
285 |
500 |
500 |
1470 |
1600 |
1560 |
1800 |
2600 |
|
