Резервуарное и насосное оборудование
ОКП 36 8913
Клапан донный является комплектующим изделием вертикальных цилиндрических резервуаров для хранения и раздачи нефти и нефтепродуктов. Клапан предназначен для слива отстоявшейся воды в вертикальных резервуарах с нефтепродуктами.
Клапан донный выпускается в климатическом исполнении Т, У и УХЛ категории размещения 1 по
ГОСТ 15150-69.
Пример условного обозначения клапана при заказе:
КМУ150 Т, где:
КМУ - клапан донный с механизмом управления;
150 - условный проход, мм;
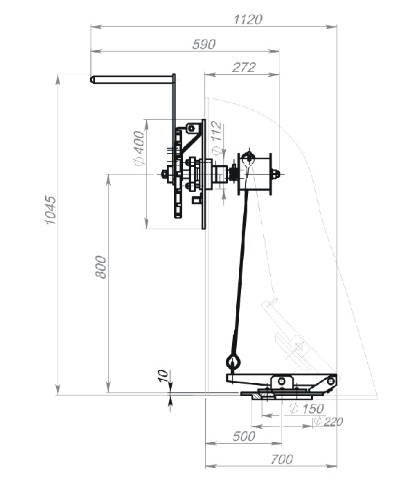
| Наименование параметров | Величина параметров |
| Условный проход Ду, мм | 150 |
| Рабочее давление, МПа | 0,15 |
| Габаритные размеры после монтажа, мм |
|
| Длина | 1120 |
| Ширина | 650 |
| Высота | 1045 |
| Масса, кг, не более | 35,0 |
